★想定できる主な用途★
・賃貸マンション運用
・社宅、社員寮/法人契約の受け皿
・家具付き賃貸(マンスリー/ウィークリー)
・サービスアパートメント的運用(長期滞在型)
・SOHO/住居兼事務所
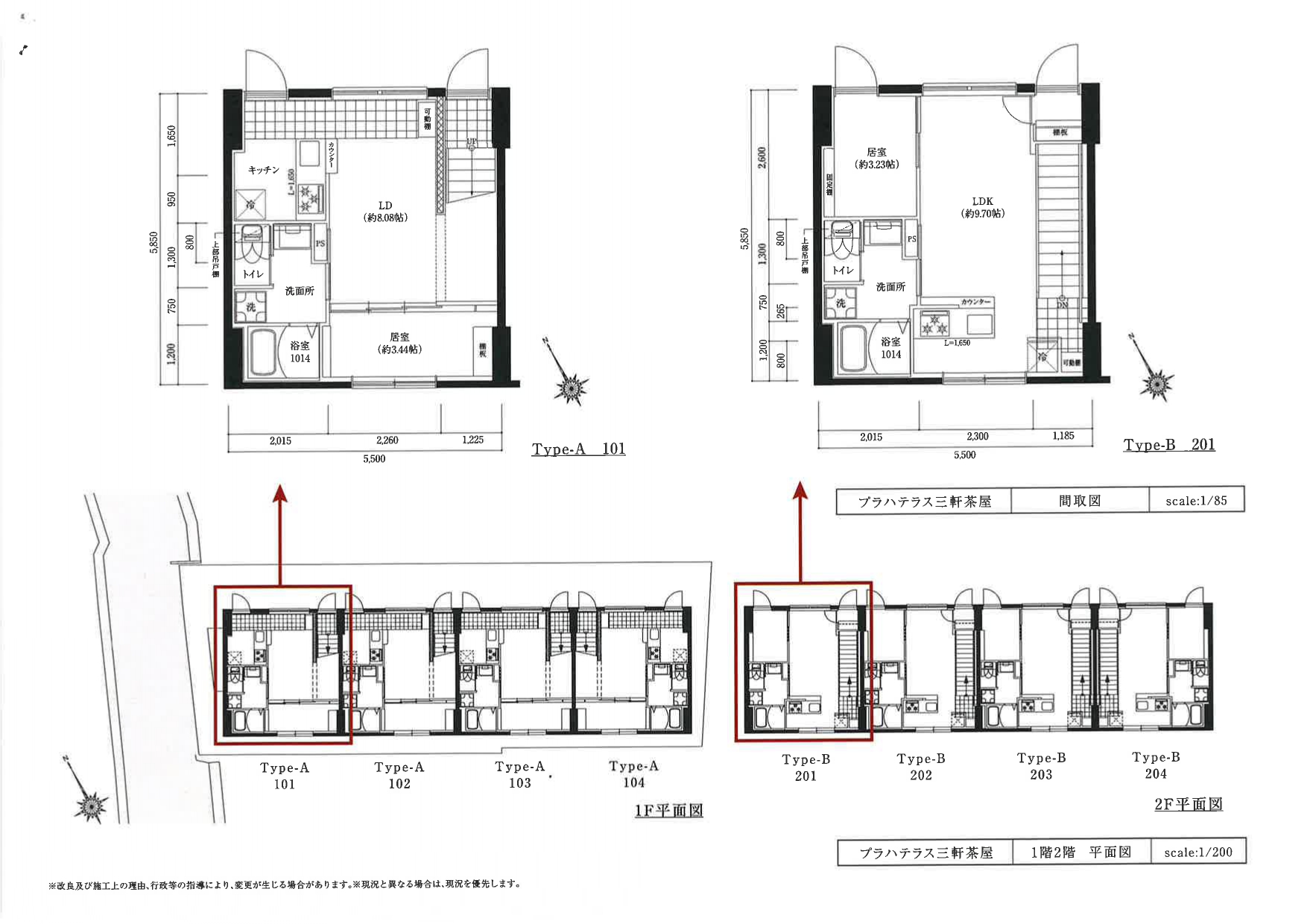
マンション
プラハテラス三軒茶屋new
- 価格
- 49800万円
- 間取
- 1棟ビル
-
★一棟投資マンション
★新築
★完成済み - 満室時表面利回り
- 3.80%
- 現行利回り
- %
|
|
|
|
|
|
||
| 所在地 | 東京都世田谷区野沢 プラハテラス三軒茶屋 |
|---|---|
| 交通 | 東急田園都市線三軒茶屋駅 徒歩10分 |
| 築年月 | 2025/10 | 新築/中古 | 新築・未入居 |
|---|---|---|---|
| 面積 | 30346㎡3389m² | 計測方式 | 壁芯 |
| バルコニー | m² | 向き | |
| 建物階数 | 地上2階 | 部屋階数 | 階 |
| 部屋/区画番号 | 総戸/区画数 | 8 | |
| 建物構造 | RC | ||
| 建築面積 | 257.40m² | ||
| 間取内容 | |
||
| 駐車場 | 取引態様 | 専任 | |
| 引渡/入居時期 | 即時 | 現況 | 空家 |
| 地目 | 宅地 | 用途地域 | 第一種低層住居専 |
| 都市計画 | 地勢 | 平坦 | |
| 建ぺい率 | 60% | 容積率 | 150% |
| 接道方向1 | 西 | 接道間口1 | 5m |
| 接道種別1 | 公道 | 接道幅員1 | m |
| 周辺環境 | |||
| 設備・条件 |
|
||
| 物件番号 | 掲載期限日 | 20260219o | |
| 自社物 | 先物 | 状態 | 売出中 |
※物件掲載内容と現況に相違がある場合は現況を優先と致します。





























