ビル 北大津BLDG.
new

  • 完成予想(外観)

    完成予想

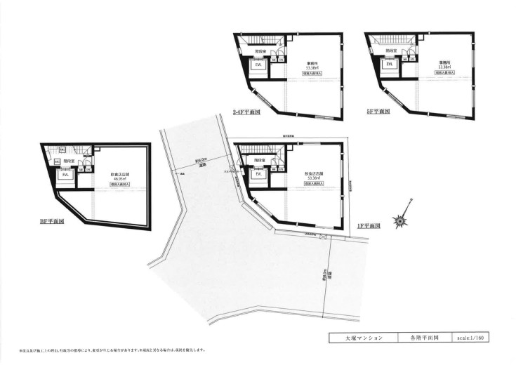
  • (間取)
価格
69800万円
間取
1棟ビル

★新築収益ビル
★スケルトン引渡、内装フリー
(お好きなプランで運用可能。)
★駅近、商業地域

坪単価
2万円

満室時表面利回り
3.88%
現行利回り
%
所在地 東京都豊島区北大塚2丁目
北大塚新築ビル
交通 JR山手線大塚駅 徒歩3分
築年月 新築/中古 新築・未入居
面積 70.07m² 計測方式 壁芯
バルコニー 向き
建物階数 地上5階  地下1階 部屋階数
部屋/区画番号 総戸/区画数 1棟
建物構造 RC
敷地全体面積 延べ床面積 420.42m²
間取内容          
駐車場   取引態様 専任
引渡/入居時期 相談 現況 未完成
地目 宅地 用途地域 商業
土地面積 93.44m² 土地面積計測方式
建ぺい率 80(100)% 容積率 600(480)%
土地権利 所有権 接道状況 二方(除角地)
接道方向1 西 接道間口1 6.05m
接道種別1 公道 接道幅員1 m
接道方向2 接道間口2 8.0m
接道種別2 公道 接道幅員2 m
周辺環境
設備・条件

    物件番号 20260305o
    自社物 先物 状態 売出中

    主要用途:事務所5戸・飲食店2店舗
    新築物件:工期未定

     

    ※物件掲載内容と現況に相違がある場合は現況を優先と致します。

    問合せ先

    総合ホームサービス株式会社 E-Mail shs@shs-3cha.com 〒154-0004 東京都世田谷区太子堂2-12-3 オカベビルA1階 TEL 03-5432-0690 FAX 03-5432-0641 営業時間 10:00~20:00 定休日 毎週水曜日 宅建免許番号: 東京都知事(5)第80768号

    問合せフォーム

    ●物件 (必須)

    ●お名前 (必須)

    ●フリガナ

    ●メールアドレス (必須)

    ●お電話番号 (必須)

    ●FAX番号

    ●ご住所

    ●年齢

    ●お問い合わせ物件について

    ■内覧のご希望日時
    ・第1希望
    時頃
    ・第2希望
    時頃
    ・第3希望
    時頃

    ●当社からのご連絡方法 (必須)